В ходе строительного контроля выявляются системные нарушения технологических процессов, которые могут привести к снижению надежности, долговечности и эксплуатационных характеристик объектов. Ниже приведена структурированная классификация наиболее распространенных нарушений и дефектов по видам работ.
Каменные конструкции:
- несоответствие толщины, заполнения и геометрии швов требованиям;
- отсутствие или нарушение проектного армирования кладки стен и перегородок;
- устройство вертикальных штраб без обязательного армирования;
- некачественное заполнение деформационных швов, включая применение несоответствующих материалов.
Монтаж сборных железобетонных конструкций:
- отсутствие исполнительных геодезических съемок после монтажа конструкций;
- отклонения от проектных решений без оформления внесения изменений в установленном порядке;
- несвоевременная или некачественная заделка стыков сборных элементов, включая нарушение сроков бетонирования.
Бетонные работы:
- необеспечение проектного класса бетонной поверхности;
- недостаточный входной контроль качества бетонной смеси и арматуры;
- отклонения от проектного армирования (шаг, диаметр стержней, защитный слой, количество рядов);
- применение инвентарной опалубки без паспортов и подтверждающих документов о техническом состоянии;
- недостаточная толщина защитного слоя бетона;
- некачественные соединения арматуры;
- смещение армокаркаса при бетонировании из-за отсутствия фиксаторов;
- применение немаркированной или неаттестованной арматуры без сертификатов соответствия;
- нестабильность опалубки и неплотное прилегание щитов, при бетонировании;
- нарушение технологии укладки бетона: высота сбрасывания> 2 м без хобота/бетононасоса;
- отсутствие ухода за бетоном: несоблюдение влажностного режима (полив, укрытие пленкой) в первые 7–14 суток;
- бетонирование при отрицательных температурах без применения противоморозных добавок или электропрогрева;
- некачественное уплотнение (отсутствие или недостаточная глубина вибрирования), приводящее к образованию пустот и раковин.
- отсутствие контроля прочности бетона: не отбираются контрольные образцы-кубы для лабораторных испытаний.
Установка оконных и дверных блоков:
- несоответствие крепежных узлов требованиям ТНПА и проектной документации;
- некачественная подготовка проемов (очистка, грунтование, выравнивание);
- нарушение технологии герметизации монтажных швов (отсутствие паро- и гидроизоляционных слоев).
Кровельные работы:
- отклонения в устройстве узлов примыканий, установке воронок и аэраторов от проектных решений;
- несоблюдение проектных уклонов кровли, приводящее к застою атмосферных осадков;
- некачественная проклейка и герметизация стыков рулонных материалов;
- отсутствие или неполноценная огрунтовка основания под кровельный ковер;
- превышение допустимых зазоров в элементах стропильной системы;
- несоответствие конструктивных решений стропильной системы проектной документации.
Благоустройство территории:
- отсутствие исполнительных съемок смонтированных элементов благоустройства;
- отклонения от проектных решений без согласования;
- некачественное устройство деформационных швов в покрытиях;
- просадки основания, нарушение продольных и поперечных уклонов, приводящие к застою воды;
- недостаточная подготовка и уплотнение основания под покрытия;
- превышение допустимой ширины швов в плиточных покрытиях и некачественная их заделка (неправильная фракция песка, отсутствие уплотнения).
Монтаж металлоконструкций:
- отсутствие исполнительных геодезических и монтажных съемок;
- некачественное выполнение антикоррозионной защиты (недостаточная толщина, нарушение технологии нанесения);
- применение материалов и изделий без сертификатов соответствия и паспортов качества;
- допуск к сварочным работам персонала без действующего аттестата;
- низкое качество сварных соединений (непровары, трещины, подрезы);
- отсутствие мероприятий по предотвращению самоотвинчивания крепежных элементов (контргайки, шплинтовка);
- нарушение последовательности монтажа и технологии установки конструкций;
- неурегулированные отступления от проектных решений.
Устройство фундаментов:
- несоответствие геометрических параметров котлована/траншеи проектным (глубина, ширина, уклоны откосов);
- некачественная зачистка дна котлована: наличие рыхлого грунта, корней, строительного мусора, нарушение природной структуры грунта при разработке экскаватором;
- отсутствие или нарушение водоотлива при производстве работ в условиях высокого уровня грунтовых вод;
- несвоевременное выполнение обратной засыпки, приводящее к обрушению откосов или подтоплению котлована атмосферными осадками;
- отсутствие бетонной подготовки под подошвой фундамента при необходимости по проекту;
- недостаточная толщина подготовки или применение некачественного материала (щебень без уплотнения);
- нанесение гидроизоляции на неподготовленную поверхность;
- нарушение технологии наплавления/нанесения рулонных или обмазочных материалов (недостаточное нахлест, непроклейка швов);
- отсутствие вертикальной гидроизоляции стен фундамента или ее повреждение при обратной засыпке;
- отклонение от вертикали при погружении свай сверх допустимого;
- недобивка свай до проектной отметки отказа или чрезмерная добивка с повреждением оголовка;
- некачественное заполнение скважин бетоном при буронабивных сваях;
- отсутствие контроля несущей способности (статическое/динамическое испытание свай).
Наиболее характерные нарушения и дефекты на примерах
Объект строительства: «Группа многоквартирных жилых домов по ул. Ульянова в г. Столине. 3 очередь. Жилой дом поз. 3 по г.п.».
Заказчик: УП «УКС Столинского района».
Подрядчик: УП «Столинская ПМК-24».
Установлены следующие нарушения:
- Установка оконных блоков осуществляется не в соответствии с требованиями ТНПА и ППР, а именно:
гибкие анкерные пластины не крепятся к внутренней стене из пустотелого керамического кирпича не менее, чем в двух точках крепления на каждую пластину (крепятся в одной точке); крепление осуществляется в тело пустотелого керамического кирпича (должно выполнятся в растворные швы), чем нарушены пункты 8.2.2, 8.2.9, 8.2.10 и 8.2.11 и приложения Б и Б.6 СП 3.02.08-2024 «Заполнение оконных и дверных проемов».

При устройстве кирпичной кладки внутренних стен вертикальные швы не полностью заполняются раствором, что недопустимо, чем нарушен пункт 5.2.9 СН 1.03.01-2019 «Возведение строительных конструкций зданий и сооружений».

Объект строительства: «Многоквартирный жилой дом по ГП-4 в квартале по ул. Мира, Центральная, Здитовская, Ф.Скорины в
г. Жабинка» (1 пусковой комплекс - жилой дом).
Заказчик: УП «УКС Жабинковского района».
Подрядчик: КУП «Брестжилстрой».
Установлены следующие нарушения.
В отдельных узлах сопряжения строительных конструкций наружных и внутренних стеновых панелей в осях «1-21/А-Л» помещений цокольного этажа здания на поверхности участков обетонирования закладных и соединительных деталей имеются пустоты и участки неуплотненного бетона площадью до 0,15м2, чем нарушены пункты 6.8.4 и 6.8.6 СН 1.03.01-2019 «Возведение строительных конструкций зданий и сооружений»).
![]() |
![]() |
Объект строительства: «Проект застройки жилого района «Тарный» в г. Витебске». 1-й этап освоения. Жилой дом КПД № 4» за исключением пускового комплекса – «Сети электросвязи».
Заказчик: ГП «УКС города Витебска.
Подрядчик: Государственное предприятие «Витебский ДСК».
Установлены следующие нарушения.
Размеры арматурных и закладных изделий не соответствуют требованиям рабочих чертежей, чем нарушен пункт 4.1 СН 1.03.01-2019 «Возведение строительных конструкций зданий и сооружений».

Объект строительства: «Модернизация здания общежития
№ 2, расположенного по адресу: г. Новополоцк, ул. Техническая, 8/18 и здания пристройки к общежитию № 2 расположенного по адресу:
г. Новополоцк, ул. Техническая, 8/17 исправительного учреждения «ИК № 1».
Заказчик: ИУ «Исправительная колония № 1» управления Департамента исполнения наказаний Министерства внутренних дел по Витебской области.
Подрядчик: ООО «ВилтТоргСервис».
![]() |
При устройстве ограждения кровли, кровельное ограждение прикреплено кровельными саморезами вместо проектных оцинкованных болтов М8х60 с гайками и двумя шайбами, чем нарушен проект 99.24, раздел АС, лист 72 и пункт 4.15 СН 5.08.01-2019 «Кровли». |
![]() |
При креплении стропильных ног и подкосов скрутками, допущено нарушение требования проекта, а именно: скрутки выполнены из одной проволоки вместо проектных двух d-4мм, чем нарушен проект 99.24, раздел АС, лист 72 и пункт 9.2.20 СН 1.03.01-2019 «Возведение строительных конструкций зданий и сооружений». |
При устройстве стропильной системы, допущено нарушение требования проекта, а именно: не установлены затяжки на стропильных ногах 50х150 длиной 5600, применены затяжки меньшей длины, чем нарушен проект 99.24, раздел АС, лист 70-72 и пункт 9.2.20 СН 1.03.01-2019 «Возведение строительных конструкций зданий и сооружений».

При устройстве стропильной системы, количество гвоздей в затяжках не соответствует требованию проекта, а именно: забито по 2 гвоздя вместо проектных 6, а также не установлены шпильки резьбовые М16, чем нарушен проект 99-24, раздел АС, лист 70 и пункт 9.1.1
СН 1.03.01-2019 «Возведение строительных конструкций зданий и сооружений».

При установке оконных блоков, допущено нарушение требования проекта, а именно: в верхних частях оконных блоков, саморасширяющаяся уплотнительная лента установлена не плотно, лента выходит наружу оконных блоков, из под ленты выступает монтажная пена, чем нарушен проект 99.24, раздел АР, лист 36 и пункт 8.4.1
СП 3.02.08-2024 «Заполнение оконных и дверных проемов».

Монтажные швы с наружной стороны оконных блоков не защищены от воздействия прямых солнечных лучей в соответствии с требованиями проектной документации 99.24, раздел АР, лист 36 и пункта 8.4.6 СП 3.02.08-2024 «Заполнение оконных и дверных проемов».

В связи с установлением факта ненадлежащего выполнения обязательных требований технических нормативных правовых актов в области архитектурной, градостроительной и строительной деятельности, применены в установленном законодательством порядке меры административной ответственности в отношении ответственного должностного лица, подрядной организации.
Объект строительства: «Капитальный ремонт административно-хозяйственного здания (инв. № 230/С-14912) по адресу: Витебская обл., г. Лепель, ул. К.Маркса, 24».
Заказчик: ГП «УКС Лепельского района».
Подрядчик: ООО «Строительная компания Пантеон».
Установлены следующие нарушения:
При стыковке отдельных деревянных элементов по стропильной системе кровли сопрягаемые конструкции плотно не примыкают друг к другу, допущены зазоры в стыках, чем нарушен пункт 9.2.8
СН 1.03.01-2019 «Возведение строительных конструкций зданий и сооружений».
![]() |
![]() |
При установке оконных отливов не осуществляется их дополнительное крепление костылями с шагом 700 мм и 150 мм от края боковой стороны отлива, напуск отдельных отливов на фасад менее
50 мм, чем нарушен проект 34/23АС л.16 и пункт 8.5.6 СП 3.02.08-2024 «Заполнение оконных и дверных проемов».
![]() |
![]() |
По оконным проемам подоконные доски не заведены в зазоры боковых откосов проемов на глубину от 30 до 70 мм, выполнена обрезка подоконных досок по обрезу боковых откосов, чем нарушен пункт 8.6.3 СП 3.02.08-2024 «Заполнение оконных и дверных проемов».

В связи с установлением факта невыполнения требований технических нормативных правовых актов в области архитектурной, градостроительной и строительной деятельности и в связи с ненадлежащим исполнением письменного требования (предписания) об устранении нарушений, применены в установленном законодательством порядке меры административной ответственности в отношении ответственного производителя работ подрядной организации.
Объект строительства: «Возведение двух коровников дойного стада, ветеринарно-санитарного пропускника и других вспомогательных сооружений на МТФ «Новое Высокое» Ельского района», Гомельская область, Ельский район, южнее д. Новое Высокое».
Заказчик: ОАО «Мозырьсоль».
Подрядчик: ООО «Никова».
Установлены следующие нарушения.
Крепление плит к полурамам (поз.1) осуществляется не в соответствии с проектом 2/24-1-КЖ, лист 11, пункт 3. (отсутствуют пластины), чем нарушен пункт 4.8 СН 1.03.04-2020 «Организация строительного производства».
![]() |
![]() |
Крепление кладки (поз.1) осуществляется не в соответствии с проектом 2/24-1-КЖ, лист 11, пункт 19 (отсутствует соединительное изделие А3 закладываемое в процессе кладки вертикально на глубину не менее 150 мм, чем нарушен пункт 4.8 СН 1.03.04-2020 «Организация строительного производства».
![]() |
![]() |
Армирование стен (поз.3) осуществляется не в соответствии с проектом 2/24-3-КЖ, лист 5 (сетки и каркас вяжутся в построечных условиях, а не на заводе-изготовителе с применением точечной сварки), чем нарушен пункт 4.8 СН 1.03.04-2020 «Организация строительного производства».
![]() |
![]() |
Устройство деформационных швов на выгульных площадках осуществляется не в соответствии с проектом 2/24-1.1, 1.2, 2.1, 2.2.2-АС, лист 6 (деталь шва по узлу «Б»), чем нарушен пункт 4.8 СН 1.03.04-2020 «Организация строительного производства».
![]() |
![]() |
Устройство деформационных швов в бетонном бортике (поз.1) осуществляется не в соответствии с проектом 2/24-1-КЖ, лист 3, пункт 1 (в место просмоленной доски установлен стенофлекс), чем нарушен пункт 4.8 СН 1.03.04-2020 «Организация строительного производства».
![]() |
![]() |
Не заделаны зазоры между перегородкой и плитой перекрытия (поз.4) в соответствии с проектом 2/24-4-АР, лист 7, п. 9 (в место эластичного уплотнителя зазор заполнен минераловатной плитой), чем нарушен пункт 4.8 СН 1.03.04-2020 «Организация строительного производства».

В связи с установлением факта невыполнения требований технических нормативных правовых актов в области архитектурной, градостроительной и строительной деятельности и в связи с ненадлежащим исполнением письменного требования (предписания) об устранении нарушений, применены в установленном законодательством порядке меры административной ответственности в отношении ответственных производителей работ подрядных организации.
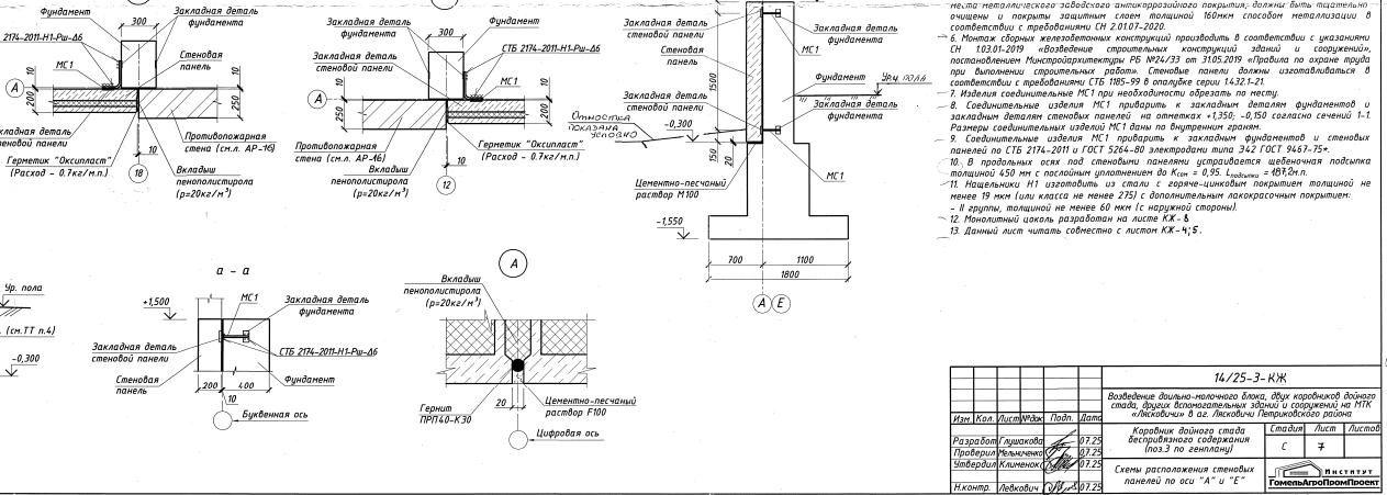
Объект строительства: «Возведение доильно-молочного блока, двух коровников дойного стада, других вспомогательных зданий и сооружений на МТК «Лясковичи» в аг. Лясковичи Петриковского района».
Заказчик: КУП «Гомельское областное УКС».
Подрядчик: Филиал ПМК № 76 ОАО «Гомельский объединенный строительный трест»;
Установлены следующие нарушения.
Складирование материалов производится с нарушением ППР, в части стройгенплана, чем нарушен пункт 7.2 СН 1.03.04-2020 «Организация строительного производства».
![]() |
![]() |
Колодцы, шурфы или другие выемки не закрыты крышками, щитами и не ограждены), чем нарушен пункт 45 Правил по охране труда при выполнении строительных работ, утвержденные постановлением № 24/33 от 31.05.2019 Министерства труда и социальной защиты и Министерства архитектуры и строительства.

Монтаж стеновых панелей осуществляется не в соответствии с требованием проектной документации 14/25-1-АС, лист 32-33 (величина вертикальных и горизонтальных швов отлична от 20 мм), чем нарушен пункт 4.8 СН 1.03.04-2020 «Организация строительного производства».
![]() |
![]() |

Устройство антикоррозионных покрытий осуществляется с нарушениями требований проектной документации 14/25-1-КЖ1, пункты 12-14), чем нарушен пункт 4.8 СН 1.03.04-2020 «Организация строительного производства».

Монтаж стеновых панелей в части крепления их к фундаментам, осуществляется не в соответствии с требованием проектной документации 14/25-3-КЖ, лист 7-8 (длина сварного шва не соответствует проекту), чем нарушен пункт 4.8 СН 1.03.04-2020 «Организация строительного производства».
![]() |
![]() |

Толщина горизонтальных швов кладки стен прямолинейного или криволинейного очертания из одинарного кирпича не составляет 10 мм, кладки из утолщенного кирпича или камней правильной формы – не составляет 12 мм, либо толщина вертикальных швов – отлична от 10 мм., чем нарушен пункт 5.2.8 СН 1.03.01-2019 «Возведение строительных конструкций зданий и сооружений».
![]() |
![]() |
В связи с установлением факта невыполнения требований технических нормативных правовых актов в области архитектурной, градостроительной и строительной деятельности и в связи с ненадлежащим исполнением письменного требования (предписания) об устранении нарушений, применены в установленном законодательством порядке меры административной ответственности в отношении ответственного производителя работ подрядной организации.
Объект строительства: «Капитальный ремонт жилого дома
№ 20 по ул. Ленина в г. Наровля», Гомельская область, г. Наровля, ул. Ленина, 20».
Заказчик: Наровлянский районный исполнительный комитет.
Подрядчик: ОДО «БелКонсалт-А».
Установлены следующие нарушения.
Ограждение строительной площадки не выполнено с использованием типовых элементов и решений, сплошным (без разрывов), высотой не менее 2 м и со степенью светопрозрачности от
50 % до 100 %, с обязательным устройством козырьков в местах прохода людей. Либо при применении нетиповых ограждений строительной площадки, при соответствующем обосновании в ПОС или по заданию заказчика, в составе строительного проекта не разработан отдельный проект с расчетом конструкции фундамента, чем нарушен пункт 4.13 СН 1.03.04-2020 «Организация строительного производства».
![]() |
![]() |
Строительные леса выше 4 м – эксплуатируются без приемки комиссией, назначенной руководителем строительно-монтажной организации, и оформления акта приемки, чем нарушен пункт 139 Правил по охране труда при выполнении строительных работ, утвержденные постановлением № 24/33 от 31.05.2019 Министерства труда и социальной защиты и Министерства архитектуры и строительства.
![]() |
![]() |
Ширина склеивания рулонных битумно-полимерных материалов в местах торцевого нахлеста – менее 100 мм, чем нарушен пункт 5.2.2 СН 5.08.01-2019 «Кровли».

Толщина горизонтальных швов кладки из одинарного кирпича не составляет 10 мм, чем нарушен пункт 5.2.8 СН 1.03.01-2019 «Возведение строительных конструкций зданий и сооружений».
![]() |
![]() |
В связи с установлением факта невыполнения требований технических нормативных правовых актов в области архитектурной, градостроительной и строительной деятельности и в связи с ненадлежащим исполнением письменного требования (предписания) об устранении нарушений, применены в установленном законодательством порядке меры административной ответственности в отношении ответственного начальника участка и главного инженера подрядной организации.
































